Immobilie
Neumarkter Straße Haus 4
In die Zukunft investieren.
Die Johann Lechner GmbH realisiert in Kürze ein modernes Reiheneckhaus mit Erdgeschoss, Obergeschoss und Dachgeschoss in Buchbach. Das Projekt zeichnet sich durch eine attraktive und zeitlose Architektur mit funktionalen Grundrissen, hellen und lichtdurchfluteten Räumen sowie durch eine umweltbewusste Holzbauweise mit hoher Qualität aus.
Das Gebäude wird nach den Richtlinien des KFW-Effizienzhaus 40 Standard gebaut. Nahezu jedes Effizienzhaus 40 kann mit entsprechend dimensionierten Photovoltaikflächen zu einem Plusenergiehaus erweitert werden.
daten
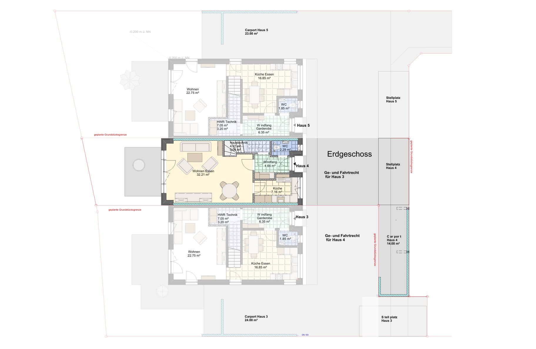
Gesamte Wohnfläche:
ca. 134 m² ohne Terrasse
Gesamte Grundstücksfläche:
ca. 158 m² (ohne Anteil Gemeinschaftsfläche)
Parkplatz: Carport und Stellplatz
Gesamte Wohn-Nutzfläche:
ca. 163 m² ohne Terrasse
Baubeginn: 2026
Kaufpreis für das Ausbauhaus: 442.600,00 €
(gegen Aufpreis kann das Objekt auch Schlüsselfertig gekauft weden)
Grundsätzliches
Die Planungsvorschläge sind mit den Behörden abgestimmt. Grundlage der Ausführung sind die anerkannten Regeln der Baukunst, die Baubeschreibung, Eingabepläne und behördliche Auflagen. Die Häuser werden ohne Keller und im KfW-Effizienzhaus-40-Standard errichtet. Maßgeblich sind Baubeschreibung und Leistungszusammenstellung, alle Maßangaben sind ca.-Werte. Abbildungen und gezeigte Einrichtungen dienen nur der Veranschaulichung und sind nicht verbindlich. Nach Abschluss der Ausführungsplanung wird die individuelle Ausstattung im Rahmen einer sorgfältig gegliederten Bemusterung gemeinsam festgelegt.
Enthaltene Leistungen für das Ausbauhaus:
- Planungs- und Bauleitungsleistungen:
Umfasst alle Planungen (Bauantrag, Werk-, Entwässerungs-, Statik- und Fachplanungen für HLS/Elektro) sowie Bauleitung, Objektüberwachung und Genehmigungsgebühren. - Gutachten und Nachweise:
Inklusive Baugrunduntersuchung, Brandschutznachweis, Lüftungskonzept, gesetzlich geforderte Gutachten, Wärmeschutznachweis und Energiepass nach GEG. - Erdarbeiten:
Rodung, Aushub der Baugrube, Fundamente und Leitungen, Abtransport des Erdreichs und abschließende Rohplanie des Grundstücks. - Rohbauarbeiten:
Errichtung gemäß statischen, schallschutz- und wärmeschutztechnischen Anforderungen. - Gründung:
Bodenplatte aus WU-Beton nach Statik mit Fundamenterder nach VDE. - Außenwände:
Holzständerbauweise mit hinterlüfteter Holzfassade, Zellulose-/Holzfaser-Dämmung, OSB-Platte innen mit Dampfbremswirkung. - Innenwände:
Tragende Holzständerwände mit OSB-Beplankung zur Aussteifung. - Geschossdecken und Treppen:
Vollholzdecken gemäß Statik, Holztreppe. - Dachkonstruktion:
Holzdachstuhl mit Zellulosedämmung, Dachpfanneneindeckung und Titanzink-Entwässerung (Rinnen, Fallrohre). - Fenster, Rollläden und Haustüre: bodentiefe Kunststofffenster mit 3-fach-Verglasung, Rollläden (handbetrieben, integriert, teils Alu-verstärkt), Haustürmodell TOPIC o. ä., RC0, 3-fach-Verriegelung, E-Öffner
- Außenanlagen:
Fahr- und Gehwege, Stellplätze und Carports mit versickerungsfähigem Betonsteinpflaster; Grünflächen planiert (Bepflanzung durch Käufer). - Terrassen und Zäune:
Terrassen mit Kiesauffüllung (Belag bauseits), Stabmattenzäune mit Gartentür je Einheit. - Carport und Infrastrukturanschluss
Carport mit Abschlusswand und begrüntem Flachdach (Pflege durch Eigentümer); Anschluss an Wasser-, Abwasser-, Strom- und Telefonnetz inkl. Hausanschlussraum.
Die Ausstattung und der Preis für ein schlüsselfertiges Haus erhalten Sie gerne auf Anfrage.
Lage
Dieses familienfreundliche, hochwertig ausgestattete Reiheneckhaus entsteht auf einem sonnigen Südgrundstück in zentraler Lage von 84428 Buchbach. Das Grundstück befindet sich in zentraler Lage, alles in Ihrer Nähe zwischen 2 und 10 Gehminuten: Markt Buchbach Zentrum, Kindergarten und Kinderkrippe, Kirche, Gemeindeverwaltung, Bücherei, Pfarrheim, Grund- und Mittelschule, Sportstätten, Naherholungsgebiet, verschiedene Dienstleistungs- und Einzelhandelsgeschäfte, VR-Bank und Sparkasse, Bushaltestellen, Lebensmittelmarkt , Arzt, Zahnarzt, Apotheke und Gesundheitspraxis.
